About Elkay
News
Careers
Literature
Investors
Where to Buy
International
Asia Pacific
Europe
Latin America
Middle East
Sign In
Dashboard
Sign Out
Shop
Cart
Search
Close
Products
Content
Drinking Water
Bottle Filling Stations
Pro Filtration
Floor Standing
Hands-free
In Wall
On Wall
Outdoor
Retrofit
View All Categories
Learn More
Water Coolers & Fountains
Floor Standing
Hands-free
In Wall
On Wall
Outdoor
View All Categories
Learn More
Water Dispensers
Liv Water Dispensers
Built-in
Countertop
Hands-free
Under Counter
View All Categories
Learn More
Outdoor
Free Standing
On Wall
View All Categories
Learn More
Accessories
Bubbler Kits
Cabinets
Cane Aprons
Chillers
Filtration
Glass Fillers
Mounting Options
Outdoor
Retrofit Kits
Tools and Electrical
Wall Panels and Plates
View All Categories
Learn More
Filtration
Shop Filters
Bottle Filling Stations
Coolers & Fountains
Water Dispensers & Liv
Faucets & Accessories
Retrofit Solutions
View All Categories
Learn More
About Filtration
Need Filter Help?
Residential Filtration
Learn More
Sinks
Installation Type
ADA-compliant
Corner
Drop-in
Dual Mount
Farmhouse
Floor
Undermount
Scullery
Sink Top
Wall
View All Categories
Learn More
Materials
Fireclay
Quartz
Stainless Steel
View All Categories
Learn More
Room Type
Bar/Prep
Bathroom
Kitchen
Laundry/Utility
View All Categories
Learn More
Application Type
ADA-Compliant
Classroom
Foodservice
General Use
Health Care
Lavatory
Multifamily
Scrub and Handwash
Service/Utility
View All Categories
Learn More
Collections
Circuit Chef
Crosstown
Custom
Dart Canyon
Dayton
Fireclay
Sink Kits
Lustertone Classic
Lustertone Iconix
Luxe
Classic
Workstations
Sink Collections
Accessories
Bottom Grids & Baskets
Cutting Boards & Colanders
Drains & Waste Fittings
Glass Fillers
Installation Hardware and Other
View All Categories
Learn More
Faucets
Commercial Use Faucets
ADA-compliant
Classroom
Foodservice
General Use
Lavatory
Scrub & Handwash
Service & Utility
View All Categories
Learn More
Residential Use
ADA-compliant
Bar/Prep
Kitchen
Laundry/Utility
Filtered
View All Categories
Learn More
Residential Type Spouts
Flexible Spout
Pot Filler
Pull-down Spray
Pull-out Spray
Semiprofessional
Standard Spout
View All Categories
Learn More
Commercial Type Spouts
Arc Tube
Bucket Hook
Double Swing
Fixed Spout
Gooseneck
High Arc
Tube Spout
Vented Spout
View All Categories
Learn More
Accessories
Escutcheons
Soap Dispensers
Filtration
View All Categories
Learn More
Markets
Education
K-12
Higher Education
Products for the Professional
Safe Water Everywhere
California Resources for Facilities Managers
California Resources for School Boards
Massachusetts SWIG Grant
Michigan Filter First Program
New Jersey DOE Grant
level-2-group
Health Care
Multifamily
Hospitality
Municipality
Office and Retail
Foodservice
Laundry
ADA-compliant Products
Learn More
Customer Stories
Milwaukee Public Schools
Equitas No. 3
Saint Charles Parish School
Holton High School
All Customer Stories
Support
Help Center
Product Registration
Archived Documents
Care and Cleaning
Filter Services
How-to Articles
Installation Help
Supplier Guidelines
Warranty
Visit the Help Center
Online Orders
Track My Order
Online Order Returns
Resources
Specification Library
BIM Innovation
Buying Guides
Continuing Education
Distribution Centers
Order Chip Samples
Product Literature
Product Sustainability
Sales Rep Resources
Trade Resources
Visit the Learning Center
More
About Elkay
News
Careers
Literature
Investors
Where to Buy
International
Asia Pacific
Europe
Latin America
Middle East
Shop
Home
Products
Drinking Water
Accessories
Outdoor
LK4471LHBBLK
LK4471LHBBLK
Locking Hose Bib Black
$2,070.00 (USD)
Actual selling price may vary
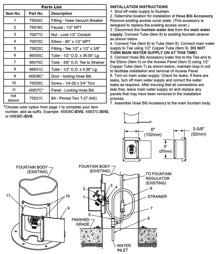
We offer accessories to enhance and coordinate with our outdoor tubular bottle filling stations. We have a selection of locking hose bibs, a direct bury adaptor and foot pedals for hands-free activation.
Read More
Spec + Install + BIM
Where to Buy
Spec + Install + BIM Files
Specification Sheet (pdf) - LK4471LHB
Outdoor tubular pedestal fountain ideal for parks and recreational areas
Powder-coated exterior over a corrosion-resistant primary coating to provide protection from the elements
For use with outdoor tubular fountains and bottle fillers
Previous
Next
Finish
Black
Blue
Evergreen
Gray
SPECIFICATIONS
RESOURCES
Specifications
Features
316 Stainless
Heavy Duty Vandal Resistant
Dimensions
L: 7-5/16IN
W: 5-3/16IN
H: 10IN
Mounting Type
Floor Mount/Freestanding
Application
Service + Utility
Shipping Dimensions
L: 12IN
W: 11IN
H: 9IN
Shipping Weight
13LB
ADA
No
Resources
Spec Sheets (1)
Specification Sheets
PROP 65 WARNING
How-To Videos
SPECIFICATIONS
Specifications
Features
316 Stainless
Heavy Duty Vandal Resistant
Dimensions
L: 7-5/16IN
W: 5-3/16IN
H: 10IN
Mounting Type
Floor Mount/Freestanding
Application
Service + Utility
Shipping Dimensions
L: 12IN
W: 11IN
H: 9IN
Shipping Weight
13LB
ADA
No
RESOURCES
Resources
Spec Sheets (1)
Specification Sheets
PROP 65 WARNING
×